Das ist zumindest der Wunsch eines Investors, der dem Ausschuss für Stadtentwicklung, Wirtschaft und Wohnen (ASWW) in seiner gestrigen Sitzung aber schon sehr konkrete Pläne vorgelegt hat.
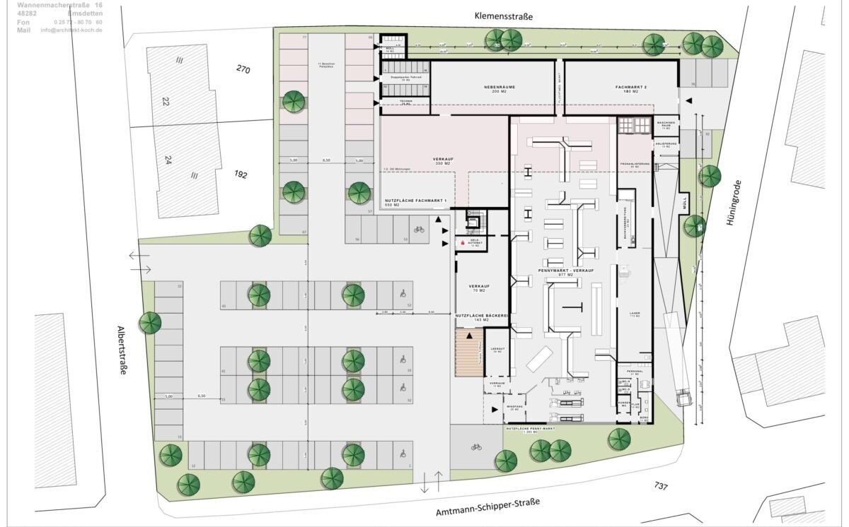
Es handelt sich dabei um das Gelände an der Amtmann-Schipper-Straße zwischen Albertstraße und Hüningrode. Damit es überhaupt dazu kommen kann, muss zunächst der Aufstellungsbeschluss zum Bebauungsplan 102A „Hüningrode“ aus 2005 aufgehoben und ein neues Bebauungsplanverfahren in die Wege geleitet werden. Das ist gestern, als der ASWW dem Vorhaben „Neubau Lebensmitteldiscounter mit ergänzenden Fachmärkten und ergänzender Wohnnutzung an der Amtmann-Schipper-Straße“ geschlossen zugestimmt hat, vom Grundsatz her geschehen.
„Durch den Neubau des bestehenden Lebensmitteldiscounters in Verbindung mit zwei Fachmärkten und Bäckereifiliale wird die Nahversorgung in diesem Bereich gesichert. Auch die ergänzende Wohnnutzung in den Obergeschossen ist im Sinne der Binnenentwicklung und einer effektiven Nutzung von Flächen zu begrüßen.“, heißt es dazu in der Beschlussvorlage.
Der Grundstückseigentümer und Investor hat erklärt, sämtliche Kosten der Bauleitplanung, externe Gutachten und gutachterliche Stellungnahmen zu übernehmen. Baubeginn ist günstigstenfalls für Ende 2029 vorgesehen.





Jetzt mal ganz im Ernst :Wir haben 6!!!! K+K Märkte, Penny, 2 Aldi, Lidl, Netto, Edeka, Kaufland…. Hab ich einen vergessen????? In den K+K Läden ist schon nichts los – egal wann man hingeht…. Wozu jetzt noch einen Lebensmitteldiscounter??????? Der größte Schwachsinn schlechthin. Sorry, aber das ist meine Meinung!!!!!
Es geht um den bestehenden Penny. Da soll der Neubau hin samt Wohnraum. Wie viel % des gesamten Komplexes stehen aktuell leer? Macht meiner Meinung nach Sinn, dass alles neu aufzubauen, zumal die Finanzierung ja gesichert zu sein scheint.
Text nicht gelesen?
Es geht um den bereits bestehenden Discounter „Penny“.
Es gibt keinen zusätzlichen, sondern der vorhandene Pennymarkt soll abgerissen werden, dafür entsteht an gleicher Stelle ein neuer Penny, 2 Fachmärkte und Wohnungen.
Hallo Silke Uhlmann,
es geht nicht um einen zusätzlichen Discounter. Hier soll ein bestehender Markt im Neubau erhalten bleiben.
Ein Discounter an dieser Stelle ist dauerhaft sinnvoll. Hier ist genügend Bedarf vorhanden.
Danke für Ihre Nachricht. Wir werden diese schnellst möglich bearbeiten.